20779 E LARRY LaneMayer, AZ 86333
Due to the health concerns created by Coronavirus we are offering personal 1-1 online video walkthough tours where possible.




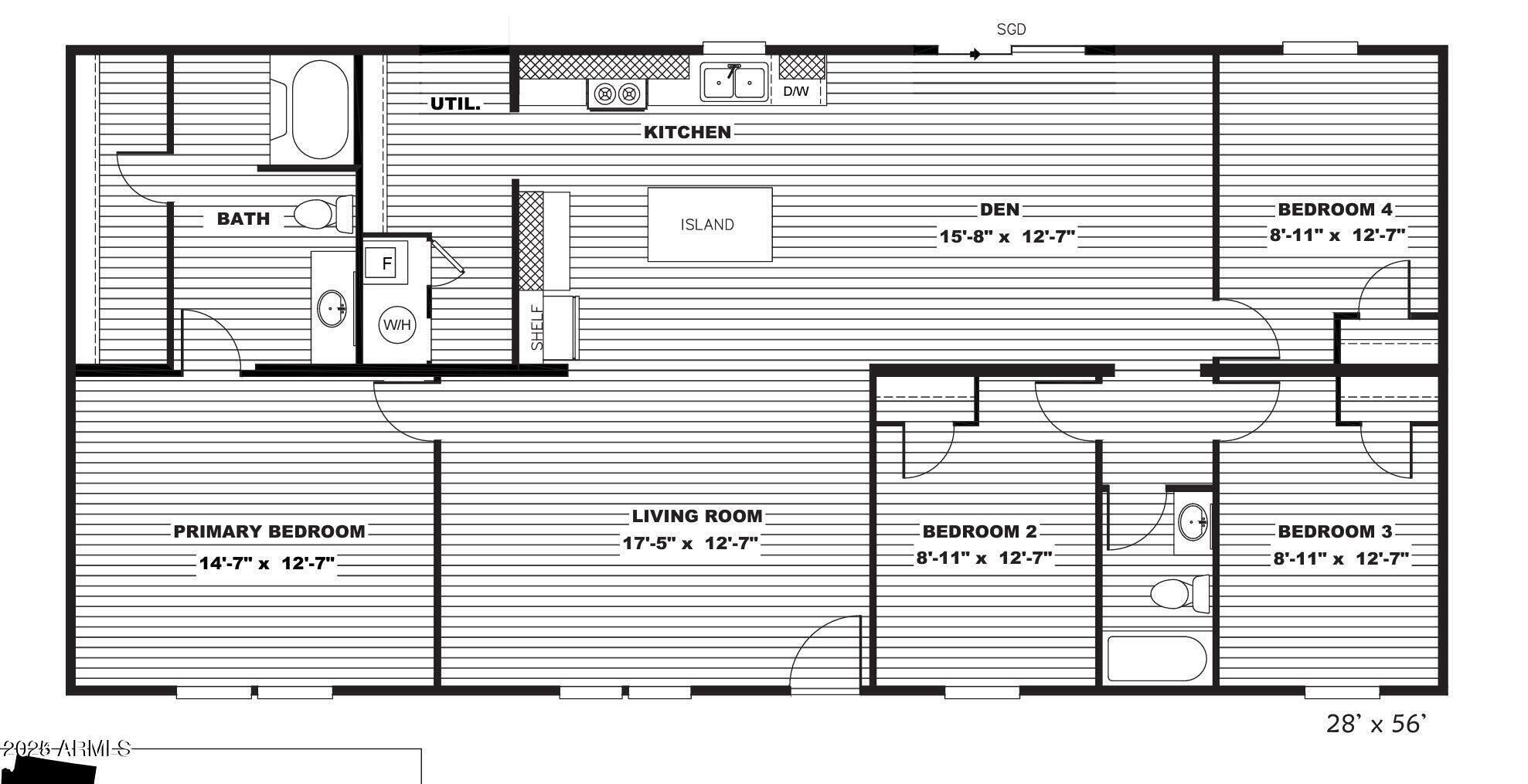
Nestled in a picturesque area near Prescott, Sedona, and Flagstaff, and a short drive from Phoenix, Arizona, this magnificent newly constructed manufactured home boasts 1475 Sqft of living space, complete with 4 bedrooms, 2 bathrooms, a den, and living area, slated for completion in March 2026. Additional features include a new septic system, with the opportunity to place a deposit and select interior and exterior paint colors. This purchase also includes new appliances and 5 mini-split highly efficient air conditioning and heating units, with parking options for a garage or port, and landscaping and fencing available as optional features.
| 2 months ago | Listing updated with changes from the MLS® | |
| 2 months ago | Listing first seen on site |
All information should be verified by the recipient and none is guaranteed as accurate by ARMLS. Copyright 2026 Arizona Regional Multiple Listing Service, Inc. All rights reserved.
Last checked: 2026-01-16 02:40 AM UTC

Did you know? You can invite friends and family to your search. They can join your search, rate and discuss listings with you.