11959 W VERNON AvenueAvondale, AZ 85392
Due to the health concerns created by Coronavirus we are offering personal 1-1 online video walkthough tours where possible.




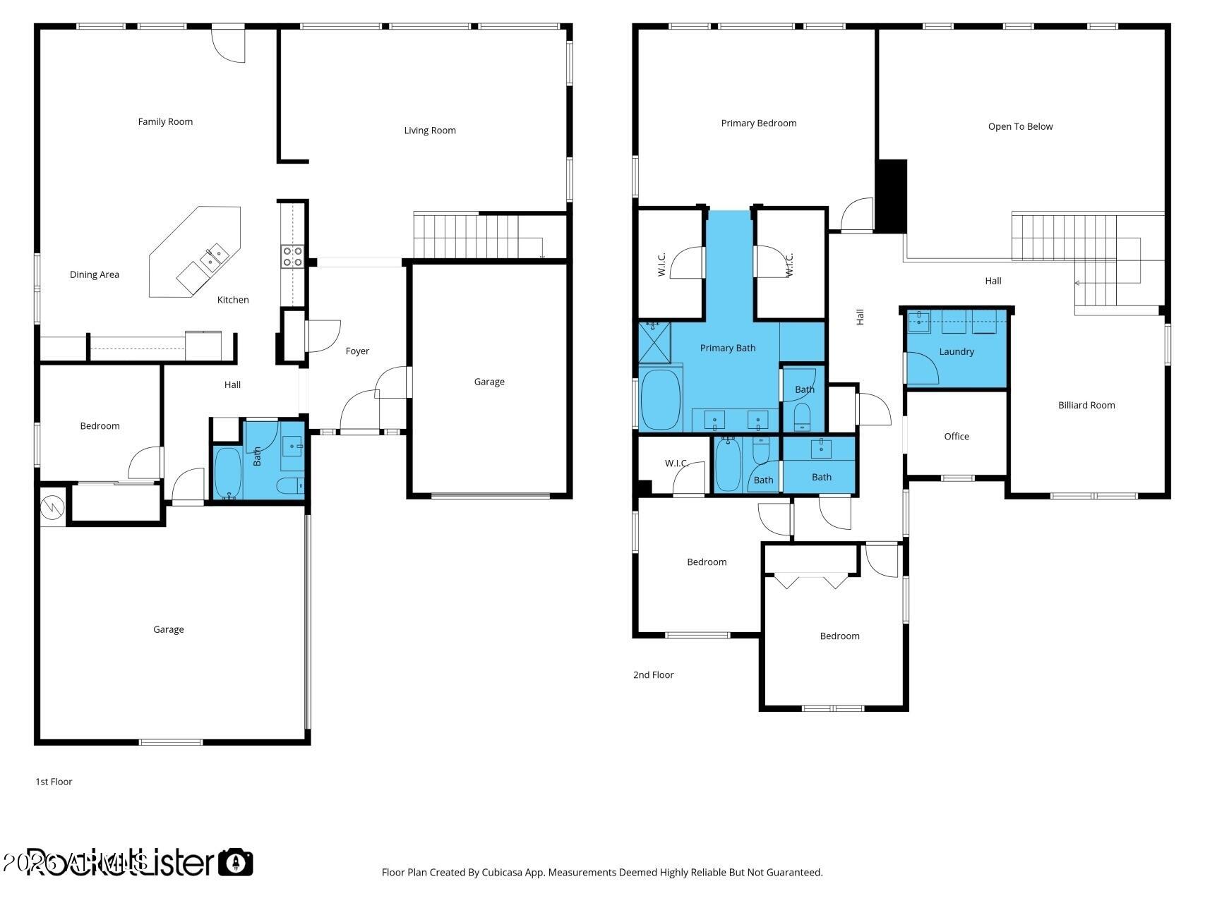
The perfect blend of comfort, functionality, and privacy. This home includes a full bedroom and bathroom on the main floor-ideal for guests, multi-generational living, or a private home office. Upstairs, you'll find spacious secondary bedrooms and a well-appointed primary suite, with an additional office space and den, all with Soft Water throughout! The split 3-car garage offers ample space for vehicles, storage, or a workshop setup. Step outside and enjoy one of the home's standout features: a private backyard with no neighbors behind, backing to a serene greenbelt for added peace and open views. The covered patio creates a comfortable outdoor living space, makes entertaining effortless year-round.
| 2 weeks ago | Listing updated with changes from the MLS® | |
| 2 weeks ago | Status changed to Active | |
| 3 weeks ago | Listing first seen on site |
All information should be verified by the recipient and none is guaranteed as accurate by ARMLS. Copyright 2026 Arizona Regional Multiple Listing Service, Inc. All rights reserved.
Last checked: 2026-04-17 11:09 PM UTC
